
4 Beds
3 Baths
2,426 SqFt
4 Beds
3 Baths
2,426 SqFt
Open House
Sat Jan 10, 12:00pm - 4:00pm
Sun Jan 11, 12:00pm - 4:00pm
Tue Jan 13, 12:00pm - 4:00pm
Key Details
Property Type Single Family Home
Sub Type Single Family Residence
Listing Status Active
Purchase Type For Sale
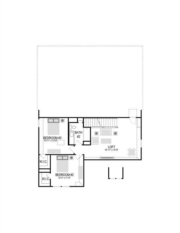
Square Footage 2,426 sqft
Subdivision Elevon
MLS Listing ID 21097344
Style Contemporary/Modern,Craftsman
Bedrooms 4
Full Baths 3
HOA Fees $155/mo
HOA Y/N Mandatory
Year Built 2025
Lot Size 5,401 Sqft
Acres 0.124
Lot Dimensions 50x120
Property Sub-Type Single Family Residence
Property Description
Location
State TX
County Collin
Community Club House, Community Pool, Fishing, Greenbelt, Jogging Path/Bike Path, Lake, Park, Playground, Sidewalks, Tennis Court(S)
Direction From President George Bush Turnpike, take State Hwy 78 East to Geren Dr and Main St. Head East on Main St., turn left on Watkins road, then again onto Noble Grove. Take the third left off Noble Grove then a right onto Hope Orchard Drive. The Sales center will be on the right at 302 Hope Orchards Dr
Rooms
Dining Room 1
Interior
Interior Features Cable TV Available, Decorative Lighting, High Speed Internet Available, Kitchen Island, Open Floorplan, Pantry, Vaulted Ceiling(s), Walk-In Closet(s)
Heating Central
Cooling Ceiling Fan(s), Central Air
Flooring Carpet, Luxury Vinyl Plank, Tile
Appliance Dishwasher, Disposal, Electric Oven, Gas Cooktop, Microwave, Plumbed For Gas in Kitchen, Tankless Water Heater, Vented Exhaust Fan
Heat Source Central
Laundry Electric Dryer Hookup, Utility Room, Full Size W/D Area, Washer Hookup
Exterior
Exterior Feature Covered Patio/Porch, Rain Gutters, Lighting, Private Yard
Garage Spaces 2.0
Fence Back Yard, Wood
Community Features Club House, Community Pool, Fishing, Greenbelt, Jogging Path/Bike Path, Lake, Park, Playground, Sidewalks, Tennis Court(s)
Utilities Available City Sewer, City Water, Community Mailbox, Curbs, Individual Gas Meter, Individual Water Meter, Sidewalk, Underground Utilities, Other
Roof Type Composition
Total Parking Spaces 2
Garage Yes
Building
Story Two
Foundation Slab
Level or Stories Two
Structure Type Brick,Rock/Stone,Siding
Schools
Elementary Schools Mary Lou Dodson
Middle Schools Community Trails
High Schools Community
School District Community Isd
Others
Virtual Tour https://my.matterport.com/show/?m=LuqCJPw4oFh







